rif 3302
RIF.TO: ES3302
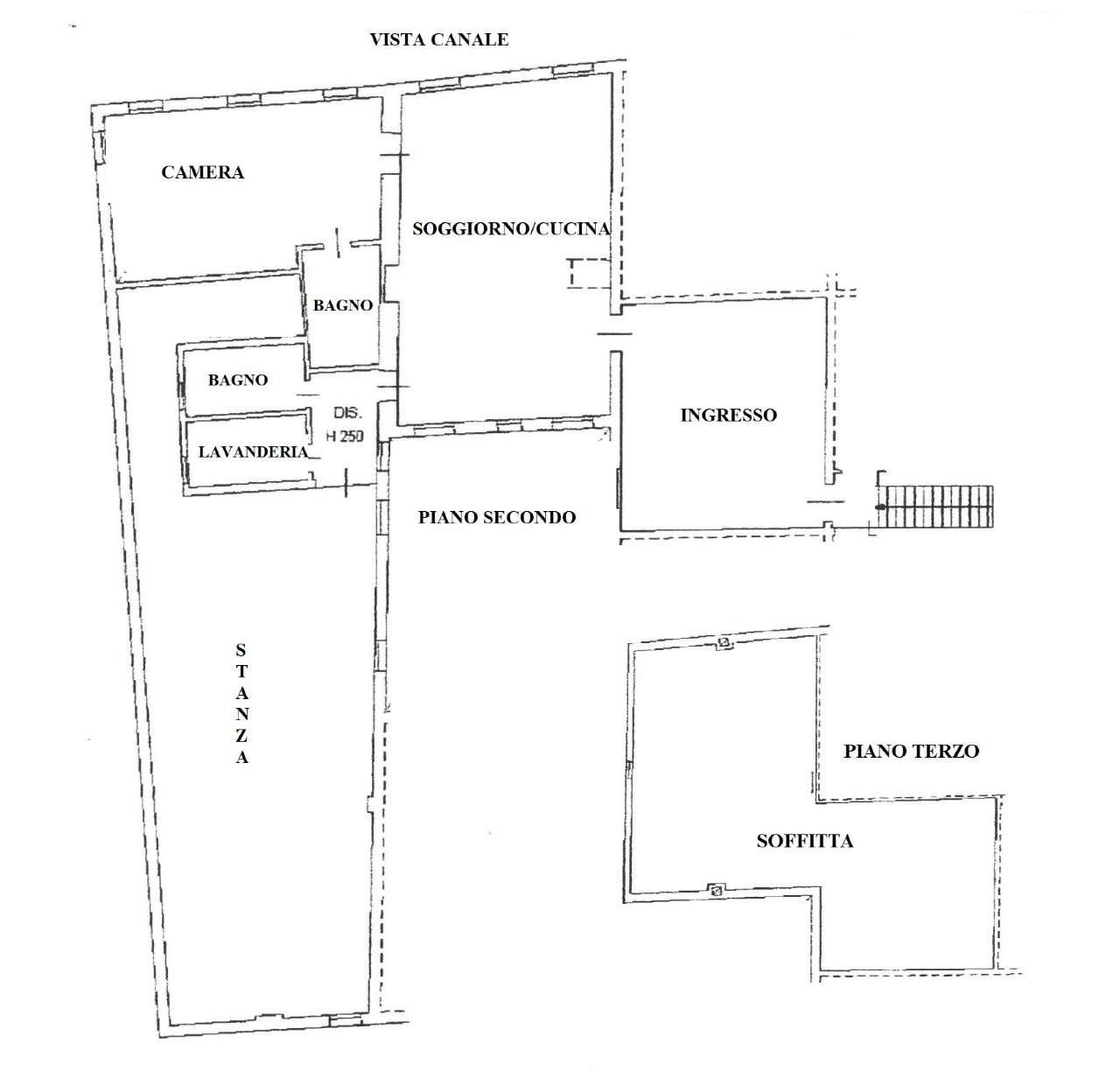
VENEZIA fondamenta misericordia ultimo piano in palazzo storico con splendido affaccio panoramico vista canale. ottimamente restaurato recuperando carattestici elementi decorativi, composto da ampio ingresso studio, salone con cottura, grande camera matrimoniale con bagno e secondo servizio a disposizione di ampi spazi mansardati cl.e.G euro 1.260.000 rif.3302← Torna all'elenco immobili
Caratteristiche
Prezzo: 1260000 €
Superficie: 150 mq
Camere: 2
Bagni: 2
Tipologia: Attico / Mansarda:Residenziale
Locali: 4
Anno: 1800
Piani: 3
Piano: 3
Disponibilità: Disponibile da subito
Condizioni: Nuovo
Arredamento: No
Riscaldamento: Autonomo
Ascensore: No
Classe energetica: G
Cucina: Abitabile
Giardino: No
Parcheggio: Nessuno
Terrazzo Abitabile: No
Soffitta: Si
Idoneo disabili: No
Porta sola: no
