albergo
RIF.TO: ES3323
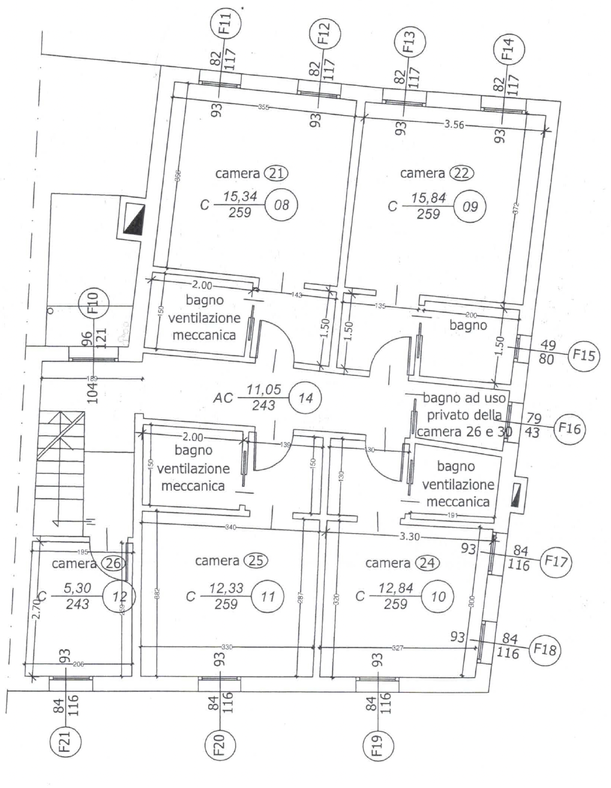
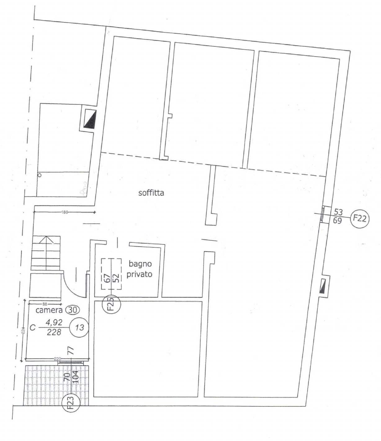
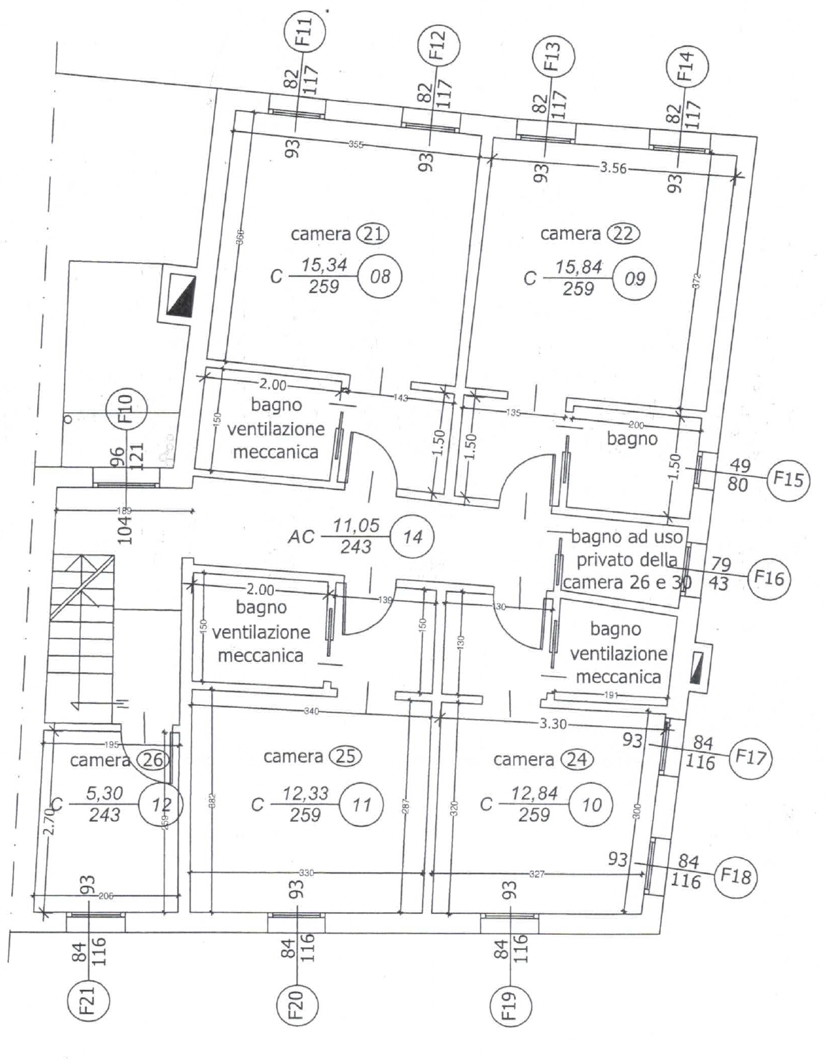
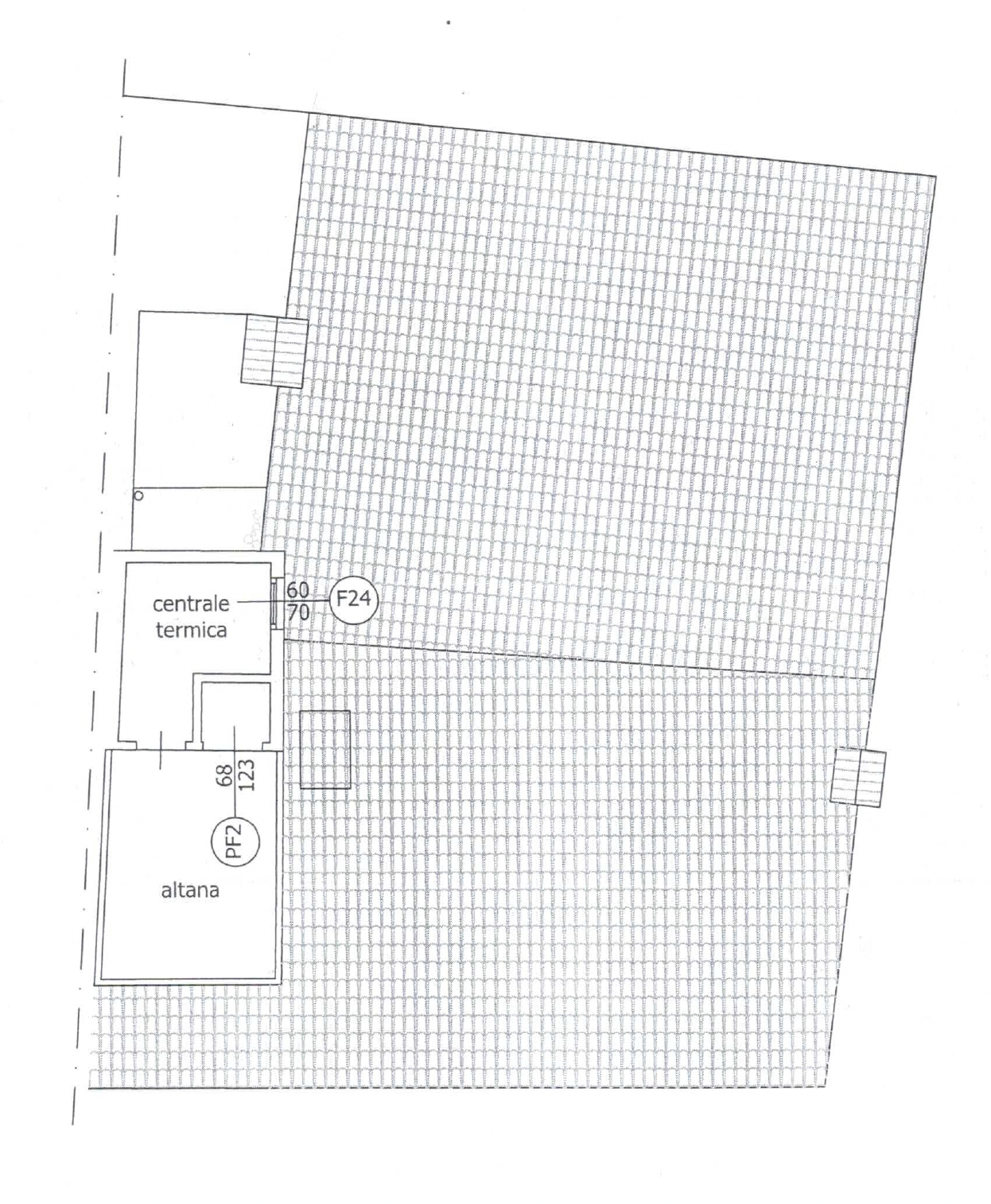
VENEZIA Santa Croce vicinanze rio Marin fondo e licenza di albergo 3 stelle con 7 camere matrimoniali autorizzate tutte con aria condizionata e bagno, 11 bagni totali, sala colazioni, terrazza, soffitta con possibilità di valorizzazione con altana, ingresso indipendente con reception cl.e G euro 2.300.000← Torna all'elenco immobili
Caratteristiche
Prezzo: 2300000 €
Tipologia: Albergo:Commerciale
Piani: 4
Disponibilità: Disponibile da subito
Condizioni: Ristrutturato
Arredamento: Si
Riscaldamento: Autonomo
Ascensore: No
Classe energetica: G
Giardino: No
Parcheggio: Nessuno
Terrazzo Abitabile: No
Soffitta: No
Idoneo disabili: No
Porta sola: no
