affittanze turistiche con terrazza es 3326
RIF.TO: ES3326
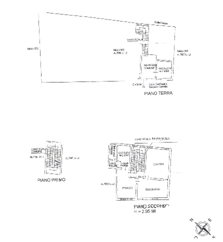
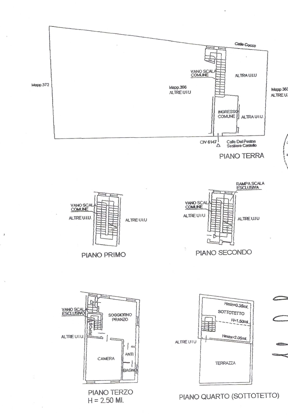
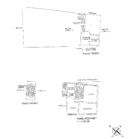
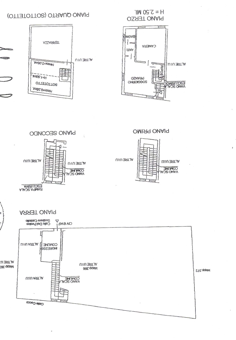
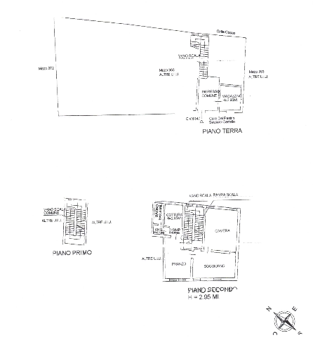
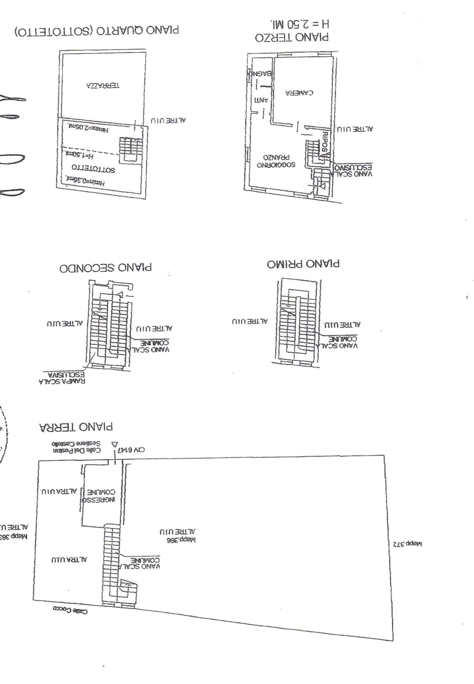
VENEZIA, Santa Maria Formosa immobile porta sola ben tenuto composto da due unità dotate di fosse settiche già avviate alle affittanze turistiche: ingresso e magazzino al piano terra, al II piano appartamento composto da ingresso cucina pranzo soggiorno camera matrimoniale e bagno, al III piano soggiorno con cottura matrimoniale bagno oltre a scala che conduce ad ampia e soleggiata terrazza con spazi sottotetto da valorizzare. cl e. G euro 690000 rif .3326← Torna all'elenco immobili
Caratteristiche
Prezzo: 690000 €
Superficie: 150 mq
Camere: 2
Bagni: 2
Tipologia: Casa indipendente:Residenziale
Locali: 8
Piani: 3
Disponibilità: Disponibile da subito
Condizioni: Buono
Arredamento: No
Riscaldamento: Autonomo
Ascensore: No
Classe energetica: G
Cucina: Abitabile
Giardino: No
Parcheggio: Nessuno
Terrazze: 1
Terrazzo Abitabile: Si
Soffitta: Si
Idoneo disabili: No
Porta sola: si
