Appartamento in Vendita a venezia
RIF.TO: ES3327
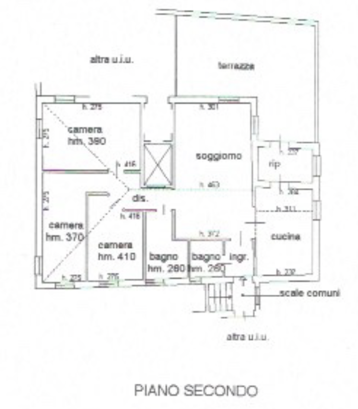
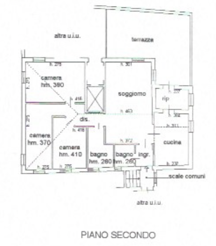
VENEZIA Santa Marina splendido appartamento finemente ristrutturato in bel contesto, II e ultimo piano luminoso con terrazza abitabile su incrocio di canali accessibile sia dal soggiorno con travi a vista che dalla cucina composto inoltre da tre camere due bagni e lavanderia oltre a magazzino al piano terra, cl.e.F euro 790000 rif.3327← Torna all'elenco immobili
Caratteristiche
Prezzo: 790000 €
Superficie: 110 mq
Camere: 3
Bagni: 2
Tipologia: Appartamento:Residenziale
Locali: 5
Piani: 2
Piano: 2
Disponibilità: Disponibile da subito
Arredamento: No
Riscaldamento: Autonomo
Ascensore: No
Cucina: Abitabile
Giardino: No
Parcheggio: Nessuno
Terrazze: 1
Terrazzo Abitabile: Si
Soffitta: No
Idoneo disabili: No
Porta sola: no
