Burano casa fronte canale rif. 4347
RIF.TO: ES4347
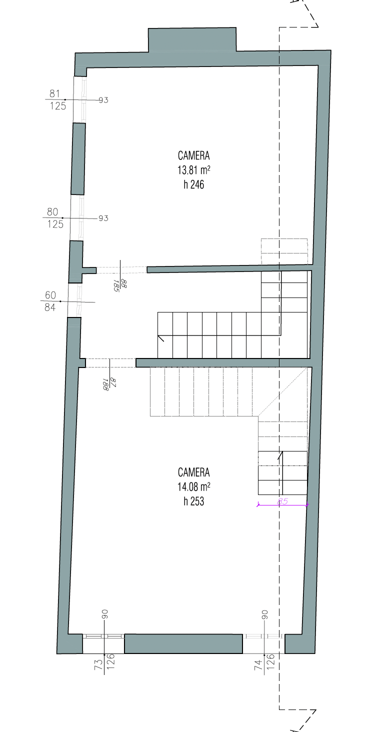
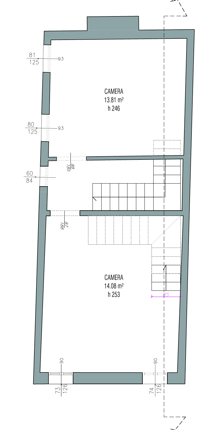
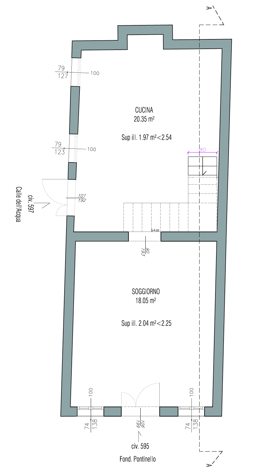
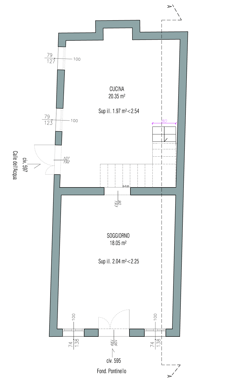
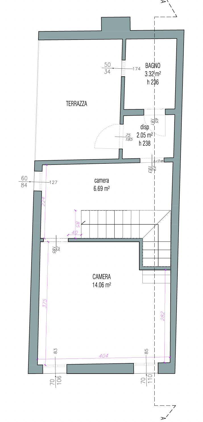
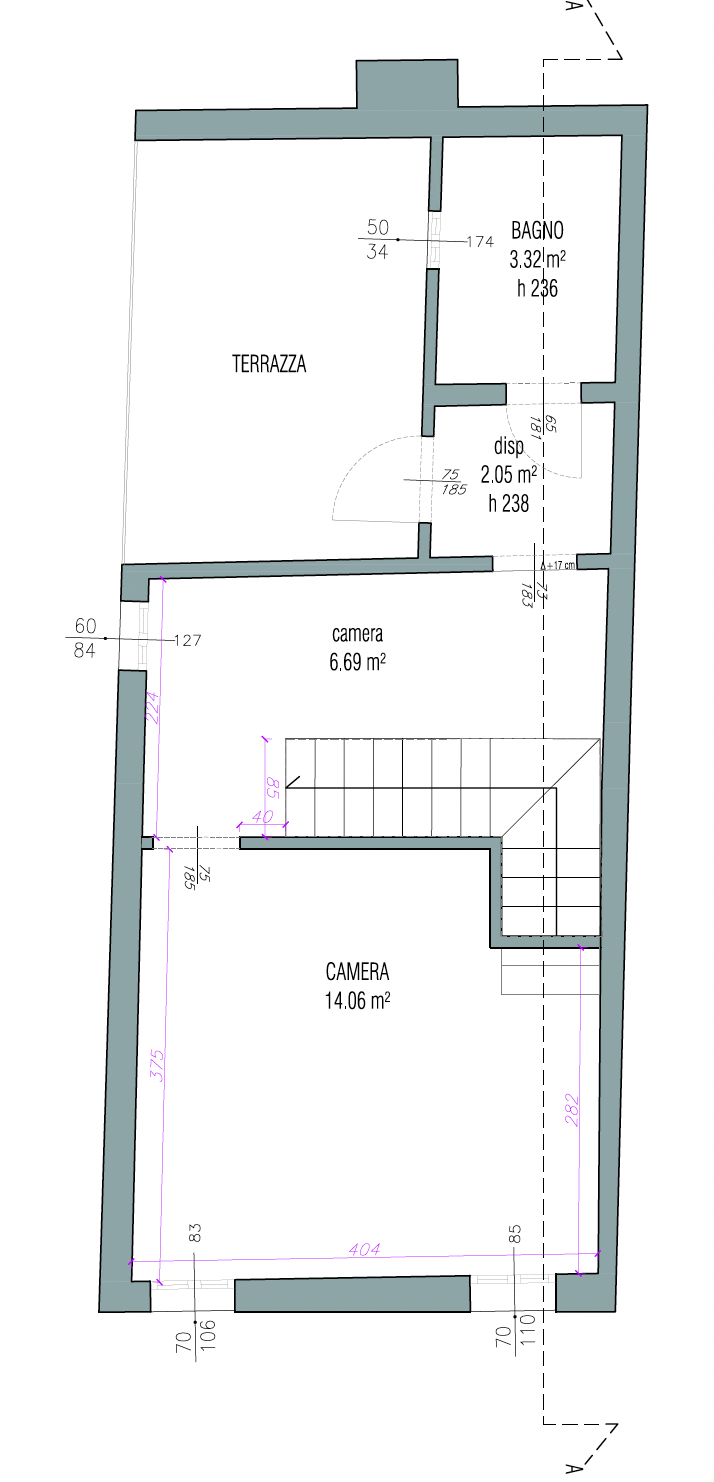
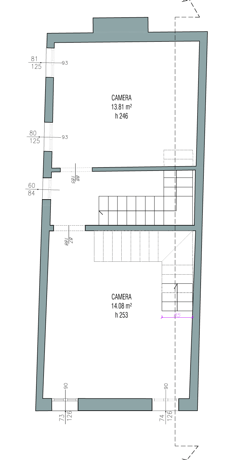
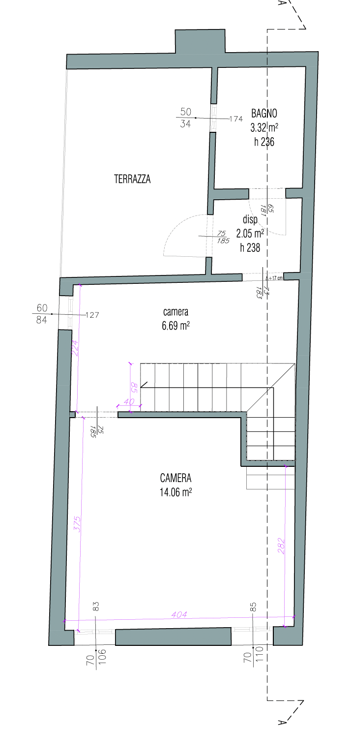
BURANO Venezia casa indipendente con due ingressi, da restaurare, fronte canale, vicinanze mezzi pubblici, composta da ingresso soggiorno cucina tre camere bagno e terrazza cl.e G euro 125.000 rif. 4347← Torna all'elenco immobili
Caratteristiche
Prezzo: 125000 €
Superficie: 125 mq
Camere: 3
Bagni: 1
Tipologia: Casa in linea:Residenziale
Piani: 3
Disponibilità: Disponibile da subito
Condizioni: Da ristrutturare
Arredamento: No
Riscaldamento: Assente
Ascensore: No
Classe energetica: G
Cucina: Abitabile
Giardino: No
Parcheggio: Nessuno
Terrazze: 1
Terrazzo Abitabile: Si
Soffitta: No
Idoneo disabili: No
Porta sola: si
