immobile storico rif 4402
RIF.TO: ES4402
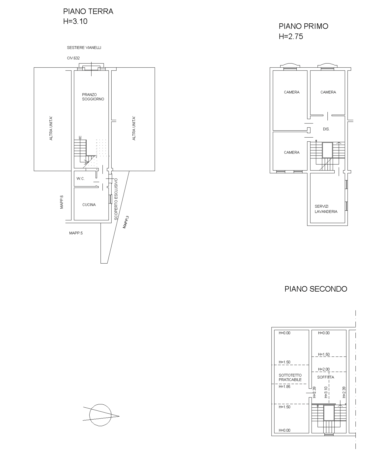
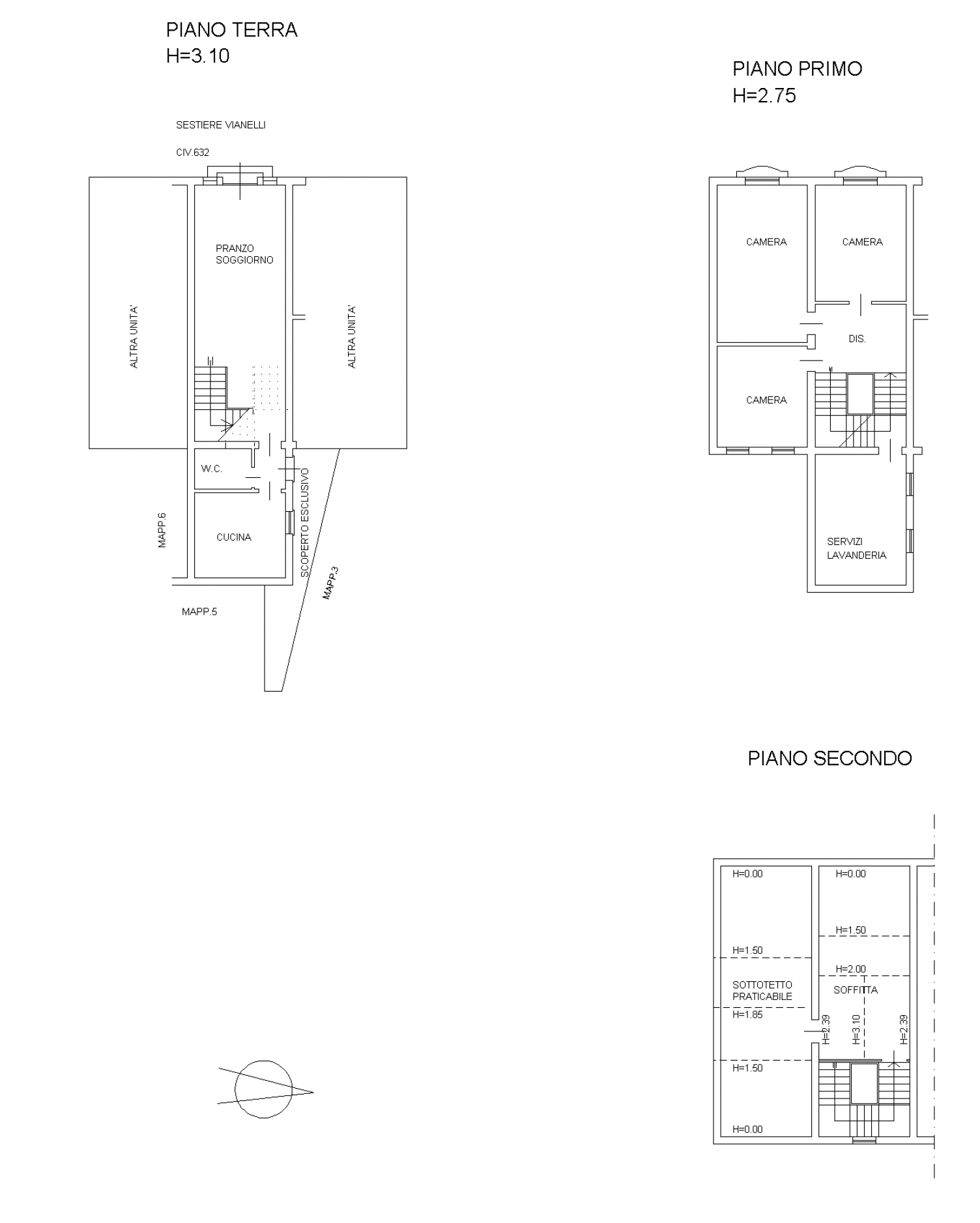
VENEZIA Pellestrina, sestiere Vianelli vicino al Santuario delle Madonna dell' apparizione, immobile storico del 1799, di ampia metratura fronte laguna con scoperto sul retro che arriva fino ai murazzi. Costituito da due unità indipendenti con accesso autonomo per un totale di 415metri. Tetti intonaci e infissi nuovi. cl.e G euro 700.000← Torna all'elenco immobili
Caratteristiche
Prezzo: 700000 €
Superficie: 415 mq
Camere: 6
Bagni: 4
Tipologia: Villa d'epoca / indipendente:Residenziale
Locali: 9
Piani: 3
Disponibilità: Disponibile da subito
Condizioni: Al grezzo
Arredamento: No
Riscaldamento: Autonomo
Ascensore: No
Classe energetica: G
Cucina: Abitabile
Giardino: Privato
Parcheggio: Posto auto scoperto
Terrazze: 1
Terrazzo Abitabile: Si
Soffitta: Si
Idoneo disabili: No
Porta sola: si
