Ufficio in Vendita a venezia
RIF.TO: ES7282
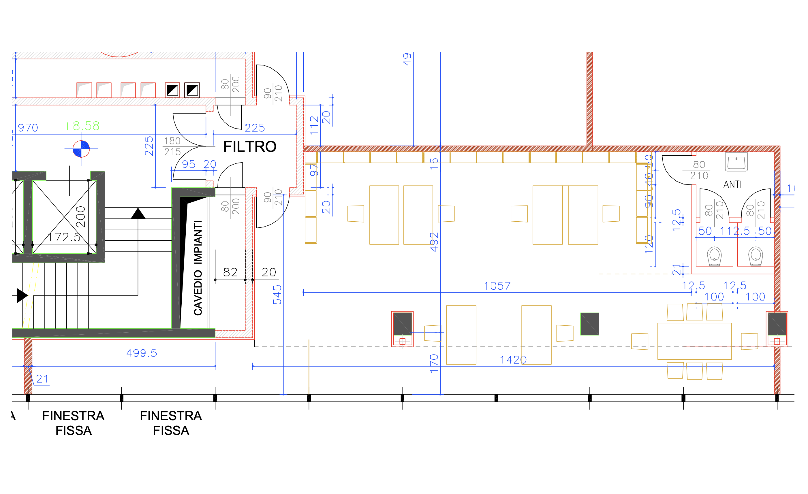
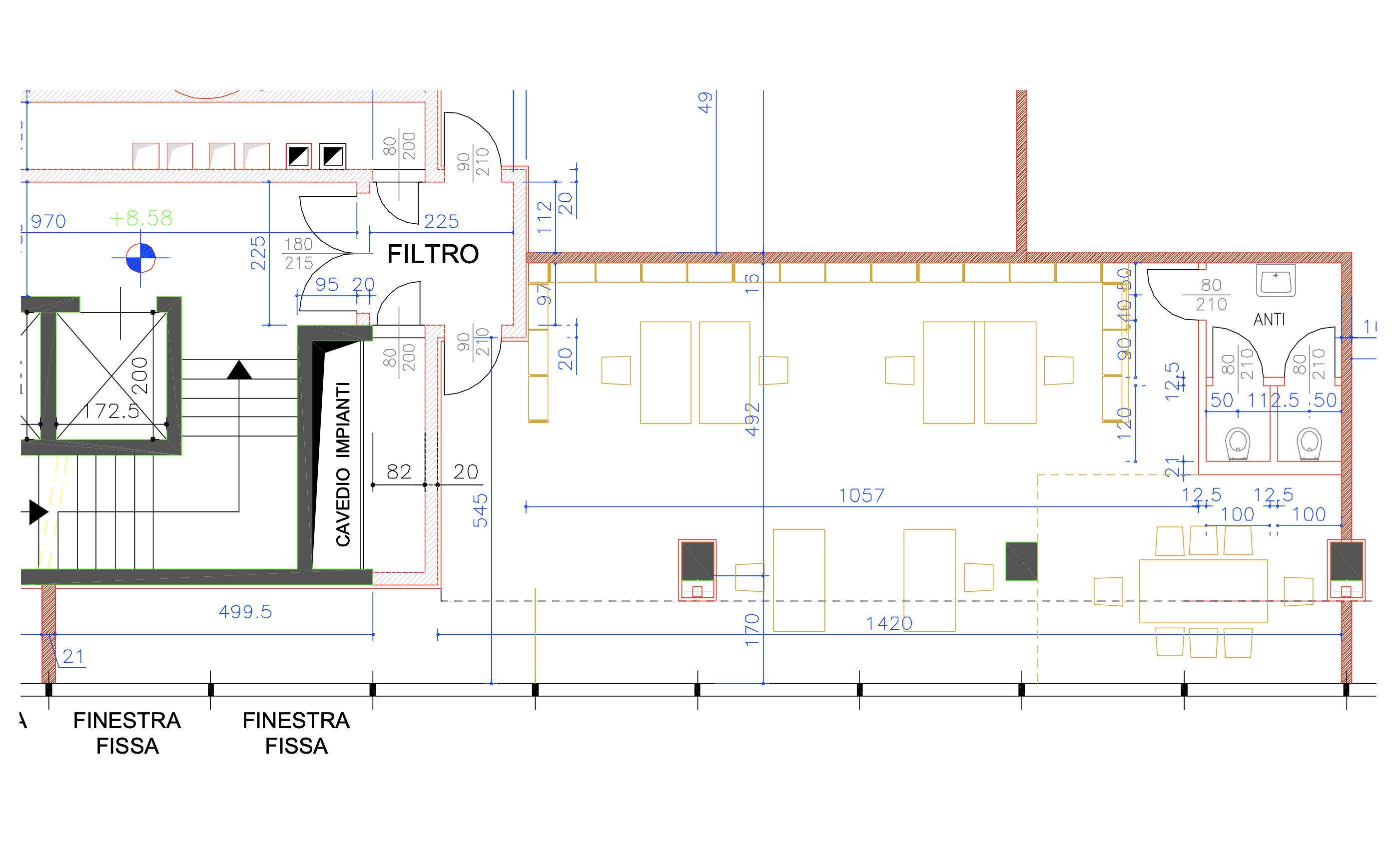
MESTRE VENEZIA all'interno del complesso VEGA ufficio arredato open space, con doppi servizi ascensore riscaldamento e condizionamento posto auto cl.e G euro 170.000← Torna all'elenco immobili
Caratteristiche
Prezzo: 170000 €
Superficie: 100 mq
Tipologia: Ufficio:Commerciale
Piani: 3
Piano: 1
Disponibilità: Disponibile da subito
Condizioni: Ristrutturato
Arredamento: No
Riscaldamento: Centralizzato
Ascensore: Si
Classe energetica: G
Giardino: No
Parcheggio: Posto auto coperto
Terrazzo Abitabile: No
Soffitta: No
Idoneo disabili: No
Porta sola: no
